Previous | Next | Discuss :: Free Advice (General Feng Shui)
Dear Wasis,
Thank you for your file attachment of your layout plan.
1. I have taken the liberty of also adding the bedroom layout plan based on Shapes and Form Feng Shui.
2. The two main attachments:-
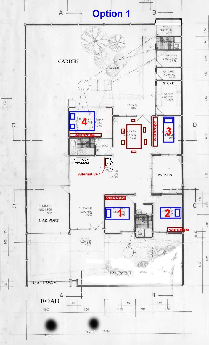
blueprint-wasis1.jpg - Option 1 with bedroom/wardrope layouts under S/no. 1, 2, 3, 4.
And alter position Alternative 1.
blueprint-wasis2.jpg - Option 2 with alternative bedroom/wardrope layouts under S/no. 1A, 2A and 3A.
3. With alternative positions for the placement of the altar:-
3.1 Alternative 1A
3.2 Alternative 1B
3.3 Alternative 2
3.4 Alternative 3
4. Comments
Before we look at the various alternatives, my major concerns are as follows:-
4.1 Your proposed location is acceptable even if it is on the same wall as the toilet area since, this wall is `clean' and unlike the location where you had the 8 immortals picture placed. The altar should not be at that location (since it is on the opposite wall as the WC).
4.2 The main concern with your proposed location is that the altar will be facing `into' the bedroom. Marked as S/no 1.
I tried to play with the various orientation of the bed in this bedroom and it seems that each way, the the bed will face the altar directly and thus inauspicious.
In Part II, I will attach file attachments of :-
blueprint-wasis3.jpg
blueprint-wasis4.jpg
5. Comments on the various alternatives of the placement of the altar
Alternative 1A is inauspicious IF it faces the main door. (From your past message, you mentioned that you may want to tilt the main door entrance. If so, this spot may be considered afterwards.
Alternative 1B - this is a possibility.
Alernative 2 - this is acceptable location. And it's distinct advantage is that the living room and dining room can be segregated into two `auspicious' rectangular shape.
Alternative 1 - this is acceptable location. As it is similar to option Alternative 2, where the living room and dining room can be segregated into two `auspicious' rectangular shape. The only decision if this is chosen is either whether to face towards the garage area or pavement area.
Alternative 3 - is a remote possibility. I say remote because, it would be inauspicious to have the altar face the dining table. If it does not and if the altar is higher than the basin opposite it, then this is a possible location.
Warmest Regards,
Cecil
On 5/8/2002 9:12:00 AM, Wasis Sugiono wrote:
>Dear Cecil,
>Please see below:
>> 5. No, the altar should preferably not be placed on the same wall as the
>> toilet. This is considered inauspicious.
>The altar in my house shares
>the same wall with the toilet
>but it is not on the other
>side of the toilet. Perhaps
>the picture I attach could
>clarify the situation. In
>addition, there is a painting
>of "The 8 Immortals crossing
>the sea" hanged on the
>wall which is exactly on the
>other side of the toilet. Are
>both placements of altar &
>painting considered
>inauspicious? Thanks in
>advance.
>Regards,
>Wasis
>> >As for an altar, is it ok to
>> >be placed on the same wall as
>> >the toilet?
>
blueprint-wasis2.jpg
Alternatives for placement of an altar (96,266 bytes)
blueprint-wasis1.jpg
Placement of altar (94,294 bytes)
|
|
[ Site Search | Forum Search | Picture Search | Site Map ] |
|
|
|
|
||
|
Help Desk: (65) 9785-3171 |
||
|
|
|
|
|
Highlights |
|
Extend your learning with Master Cecil Lee's Applied Feng Shui Made Easy Book. |
|
Site Navigation |
|
|
|
|
![]()